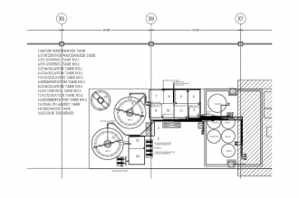
Improvement Wastewater TreatmentPlant (Up Capacity6to10 m3 /h)
Improvement Wastewater TreatmentPlant (Up Capacity6to10 m3 /h)
Chemical Treatment
Improvement Wastewater TreatmentPlant
(Up Capacity6to10 m3/h)









